|
Building Owner
|
PCCW-HKT Telephone Limited
|
Installation of occupancy/motion sensor for on/off/dimming control of lighting
Replacement of high efficacy lighting source
| | Building/Project Name |
East Exchange Tower
| | Systems |
Electrical System - Lighting
| | Building Types |
Commercial - Office Others - Carpark
|
Description of the building:
- A 24-storey building with offices, exchanges and a carpark.
- The 2-storey carpark located in basement equipped with 16 parking space.
Retrofitted initiative:
- Replaced the original T8 lighting with LED tubes that integrated with a microwave motion sensor at B1, B2 & LG floor.
- The LED lamp operates at full power when the sensor sensed motion.
- The LED lamp within escape route would be dimmed to 30% automatically when the sensor sensed no motion along access path after 1 minute. The minimum lux level will be maintained at 30 lux for meeting the requirement of Mean of Escape.
- Other LED lamps would be switched off automatically when the sensor sensed no motion within carpark space after 1 minute.
Observed benefits other than energy saving:
- Prolong the lifetime of the LED tube, therefore save money.
- Reduce the temperature of carpark, therefore better indoor environment for carpark user.
General observations of the retrofitting project:
- New carpark lighting system retrofit have not affected the users.
- Standard retrofitting initiatives with proven technologies and straight forward.
- Retrofit requires shut down of lighting system temporarily at a very short period of time. Minimal disturbance to tenants.
- Overall a well justified project with good outcomes with tangible and non-tangible benefits.
Other information:
.jpg)
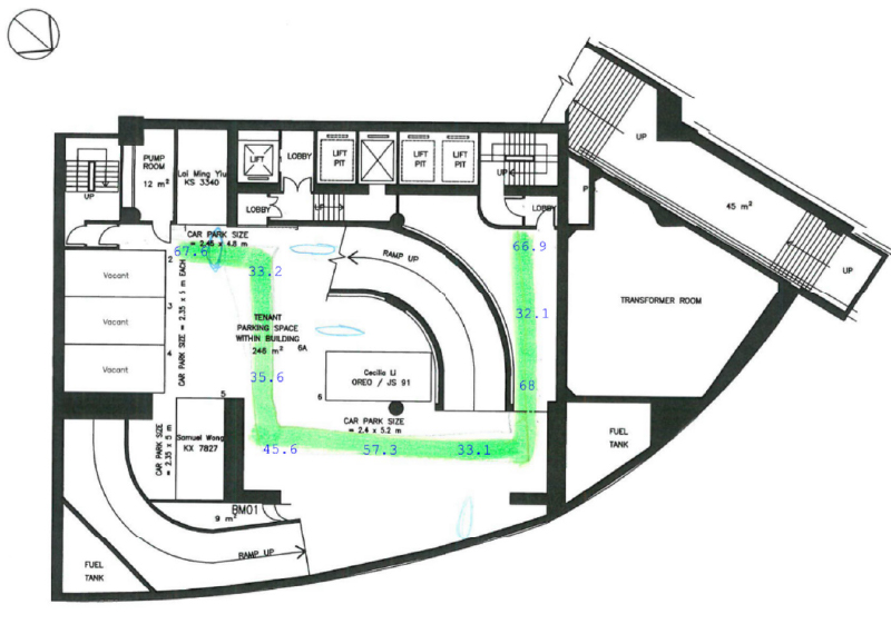
- East Exchange Tower Basement 1 Plan
(Lighting lux measurement)
Unit: Lux
|
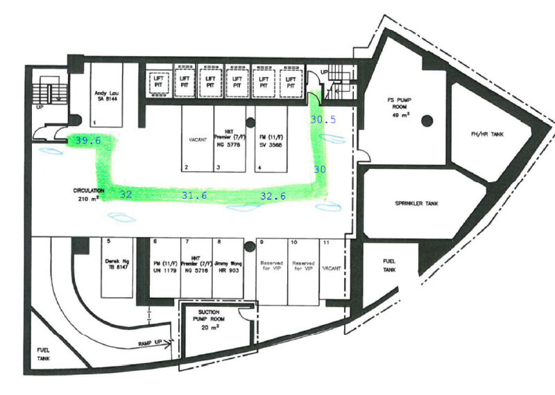
- East Exchange Tower Basement 2 Plan
(Lighting lux measurement)
Unit: Lux
|
|
|
|
| Cost |
Saving |
| Total cost: |
HKD 45,000 |
Total savings/year: |
24,800 kWh |
| Payback: |
1.8 years |
| |
|
Installation of occupancy/motion sensor for on/off/dimming control of lighting
Replacement of high efficacy lighting source
|
|
|
Building Owner
|
PCCW-HKT Telephone Limited
| | Building/Project Name |
East Exchange Tower
| |
Systems |
Electrical System - Lighting
| |
Building Types |
Commercial - Office Others - Carpark
|
Description of the building:
|
|
- A 24-storey building with offices, exchanges and a carpark.
- The 2-storey carpark located in basement equipped with 16 parking space.
Retrofitted initiative:
- Replaced the original T8 lighting with LED tubes that integrated with a microwave motion sensor at B1, B2 & LG floor.
- The LED lamp operates at full power when the sensor sensed motion.
- The LED lamp within escape route would be dimmed to 30% automatically when the sensor sensed no motion along access path after 1 minute. The minimum lux level will be maintained at 30 lux for meeting the requirement of Mean of Escape.
- Other LED lamps would be switched off automatically when the sensor sensed no motion within carpark space after 1 minute.
Observed benefits other than energy saving:
- Prolong the lifetime of the LED tube, therefore save money.
- Reduce the temperature of carpark, therefore better indoor environment for carpark user.
General observations of the retrofitting project:
- New carpark lighting system retrofit have not affected the users.
- Standard retrofitting initiatives with proven technologies and straight forward.
- Retrofit requires shut down of lighting system temporarily at a very short period of time. Minimal disturbance to tenants.
- Overall a well justified project with good outcomes with tangible and non-tangible benefits.
Other information:
.jpg)
- East Exchange Tower Basement 1 Plan
(Lighting lux measurement)
Unit: Lux
|
- East Exchange Tower Basement 2 Plan
(Lighting lux measurement)
Unit: Lux
|
|
|
|
| Cost |
Saving |
| Total cost: |
HKD 45,000 |
Total savings/year: |
24,800 kWh |
| Payback: |
1.8 years |
| |
|
Installation of occupancy/motion sensor for on/off/dimming control of lighting
Replacement of high efficacy lighting source
|
|
|